
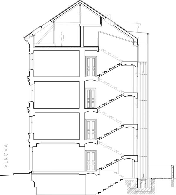
Vlkova 43, 2011-2012
Vlkova 810/43, Prague 3, 130 00 Žižkov (Czech Republic) – Residential
Vlkova 810/43, Prague 3, 130 00 Žižkov (Czech Republic) – Residential
Renovation of historical building. Architecture project from concept to realization; Building permits

The urban block

Ground floor

First floor

Second floor

Third floor

Attic floor

Elevation - before

Elevation - after