
Fashion Multibrand Atlantic, 2011
Tržiště 37/23, 360 01 Karlovy Vary (Czech Republic) – Retail
Tržiště 37/23, 360 01 Karlovy Vary (Czech Republic) – Retail
Store design.
Architecture project from concept to realization in collaboration with arch. Pietro Giuffrida; Building permits; Test

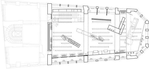
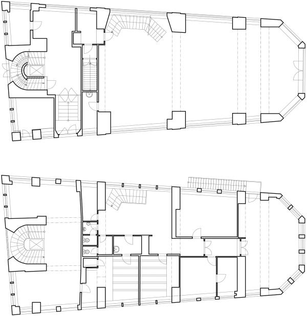
Plan

Photo

Photo

Interior section 1

Interior section 2

Exhibitor wall